PGE. DUC DE TETUAN (RIPOLLET)
ÚLTIM PIS A LA VENDA
246.415 €
73m2.
1 habitació tipus suite, 2 habitacions individuals, 2 banys
complets, ampli menjador, cuina office, safareig, parquet,
calefacció, A/A, persianes elèctriques d'alumini.
Inclou plaça de
parking.
(VENUT)

RBLA. SANT JORDI, 125
PAU CASALS
(RIPOLLET)
LOCALS COMERCIALS A LA VENDA
|
Empresa constituïda amb professionals amb més de 25 anys d'experiència en el sector de la construcció.
CONSTRUCCIÓ DE PISOS I PLACES DE PARKING
|
NOVA PROMOCIÓ EN CONSTRUCCIÓ A RAMBLA DE SANT JORDI (RIPOLLET)

PROMOCIÓ OBRA NOVA A PAU CASALS CANTONADA FONTANELLA (RIPOLLET)
PISOS DE 3 HABITACIONS I DÚPLEX D'ALT STANDING
A LA VENDA Tel. 670 290 001 - 608
794 520
A PARTIR DE 250.000 €
(FACI CLIC A LA IMATGE)
PROMOCIÓ OBRA NOVA A MONTURIOL 53-55 (RIPOLLET)
A LA VENDA Tel. 670 290 001 - 608
794 520
PISOS DE 3 HABITACIONS Y PLAÇA DE PARKING INCLOSA
A PARTIR DE 257.222 €
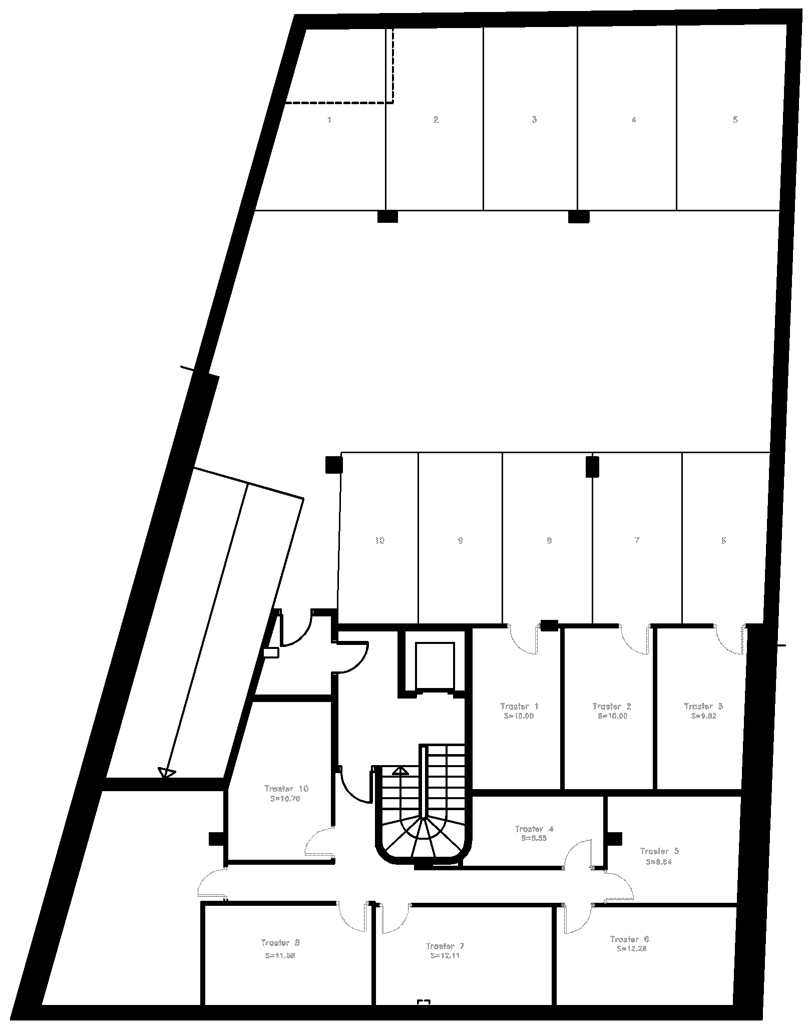
| SOTERRANI (PÀRKING) |
|
|
|
|
|
|
|
|
Plaçes pàrking |
10 |
|
|
|
| Traster 1 |
10,00 m2 |
|
Traster 6 |
12,28 m2 |
| Traster 2 |
10,00 m2 |
|
Traster 7 |
12,11 m2 |
| Traster 3 |
9,82 m2 |
|
Traster 8 |
11,58 m2 |
| Traster 4 |
6,55 m2 |
|
Traster 9 |
21,00 m2 |
| Traster 5 |
9,84 m2 |
|
Traster 10 |
10,70 m2 |
| VER MEMÒRIA DE QUALITATS |
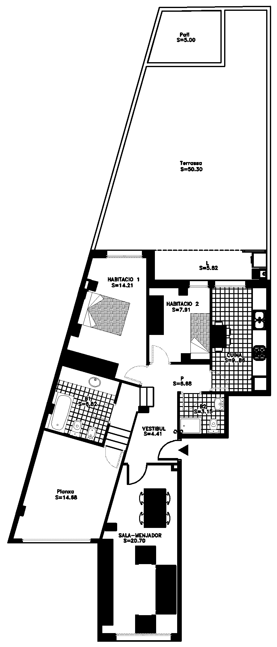
BAIXOS 1ª (VENUT)
|
|
|
|
|
|
|
|
|
Vestíbul |
4,41 m2 |
|
Habitació planxa |
14,68 m2 |
| Passadís |
6,68 m2 |
|
Bany 1 |
6,82 m2 |
| Sala menjador |
20,70 m2 |
|
Bany 2 |
3,15 m2 |
| Cuina |
9,85 m2 |
|
Terrassa |
50,30 m2 |
| Habitació 1 |
14,21 m2 |
|
Safareig |
5,62 m2 |
| Habitació 2 |
7,91 m2 |
|
Pati |
5,00 m2 |
| VER MEMÒRIA DE QUALITATS |
| 1º 1ª |
|
|
|
|
|
|
|
|
Vestíbul |
2,85 m2 |
|
Habitació planxa |
7,50 m2 |
| Passadís |
4,00 m2 |
|
Bany 1 |
4,81 m2 |
| Sala menjador |
20,00 m2 |
|
Bany 2 |
2,40 m2 |
| Cuina |
8,10 m2 |
|
Galeria |
7,75 m2 |
| Habitació 1 |
12,17 m2 |
|
Pati A |
7,15 m2 |
| Habitació 2 |
7,00 m2 |
|
|
|
| VER MEMÒRIA DE QUALITATS |
| 1º 2ª (VENUT) |
|
|
|
|
|
|
|
|
Vestíbul |
4,60 m2 |
|
Habitació 2 |
7,06 m2 |
| Passadís |
5,33 m2 |
|
Habitació 3 |
7,00 m2 |
| Sala menjador |
21,41 m2 |
|
Bany 1 |
4,08 m2 |
| Cuina |
8,05 m2 |
|
Bany 2 |
3,22 m2 |
| Habitació 1 |
12,93 m2 |
|
Terrassa |
82,91 m2 |
|
|
|
|
|
| VER MEMÒRIA DE QUALITATS |
| 1º 3ª |
|
|
|
|
|
|
|
|
Vestíbul |
5,06 m2 |
|
Habitació planxa |
6,81 m2 |
| Passadís |
5,40 m2 |
|
Bany 1 |
4,92 m2 |
| Sala menjador |
20,00 m2 |
|
Bany 2 |
2,52 m2 |
| Cuina |
8,15 m2 |
|
Galeria |
5,42 m2 |
| Habitació 1 |
10,71 m2 |
|
Pati B |
7,11 m2 |
| Habitació 2 |
6,80 m2 |
|
|
| VER MEMÒRIA DE QUALITATS |
| 2º 1ª (VENUT) |
|
|
|
|
|
|
|
|
Vestíbul |
2,85 m2 |
|
Habitació 2 |
7,00 m2 |
| Passadís |
4,00 m2 |
|
Habitació planxa |
7,50 m2 |
| Sala menjador |
20,00 m2 |
|
Bany 1 |
4,81 m2 |
| Cuina |
8,10 m2 |
|
Bany 2 |
2,40 m2 |
| Habitació 1 |
12,17 m2 |
|
Galeria |
7,75 m2 |
|
|
|
| VER MEMÒRIA DE QUALITATS |
| 2º 2ª (VENUT) |
|
|
|
|
|
|
|
|
Vestíbul |
4,60 m2 |
|
Habitació 3 |
7,00 m2 |
| Passadís |
5,33 m2 |
|
Bany 1 |
4,80 m2 |
| Sala menjador |
21,41 m2 |
|
Bany 2 |
3,22 m2 |
| Cuina |
8,05 m2 |
|
Safareig |
4,23 m2 |
| Habitació 1 |
12,93 m2 |
|
Galeria 1 |
9,14 m2 |
| Habitació 2 |
7,06 m2 |
|
Galeria 2 |
7,71m2 |
| VER MEMÒRIA DE QUALITATS |
| 2º 3ª (VENUT) |
|
|
|
|
|
|
|
|
Vestíbul |
5,06 m2 |
|
Habitació 2 |
6,80 m2 |
| Passadís |
5,40 m2 |
|
Habitació planxa |
6,81 m2 |
| Sala menjador |
20,00 m2 |
|
Bany 1 |
4,92 m2 |
| Cuina |
8,15 m2 |
|
Bany 2 |
2,52 m2 |
| Habitació 1 |
10,71 m2 |
|
Galeria |
5,42 m2 |
|
|
|
|
|
|
| VER MEMÒRIA DE QUALITATS |
| 3º 1ª (VENUT) |
|
|
|
|
|
|
|
|
Vestíbul |
2,85 m2 |
|
Habitació planxa |
6,82 m2 |
| Passadís |
7,08 m2 |
|
Bany 1 |
4,81 m2 |
| Sala menjador |
20,00 m2 |
|
Galeria |
7,75 m2 |
| Cuina |
8,10 m2 |
|
Estudi |
48,34 m2 |
| Habitació 1 |
12,17 m2 |
|
Solarium |
23,20 m2 |
| Habitació 2 |
7,00 m2 |
|
|
| VER MEMÒRIA DE QUALITATS |
| 3º 2ª (VENUT) |
|
|
|
|
|
|
|
|
Vestíbul |
4,60 m2 |
|
Bany 1 |
4,80 m2 |
| Passadís |
5,33 m2 |
|
Bany 2 |
3,22 m2 |
| Sala menjador |
21,41 m2 |
|
Galeria 1
|
9,14 m2
|
| Cuina |
8,05 m2 |
|
Galeria 2 |
7,71 m2 |
| Habitació 1 |
12,93 m2 |
|
Safareig |
4,23 m2 |
| Habitació 2 |
7,06 m2 |
|
Estudi |
42,59 m2 |
| Habitació 3 |
7,00 m2 |
|
Solarium |
53,64 m2 |
|
|
|
|
|
| VER MEMÒRIA DE QUALITATS |
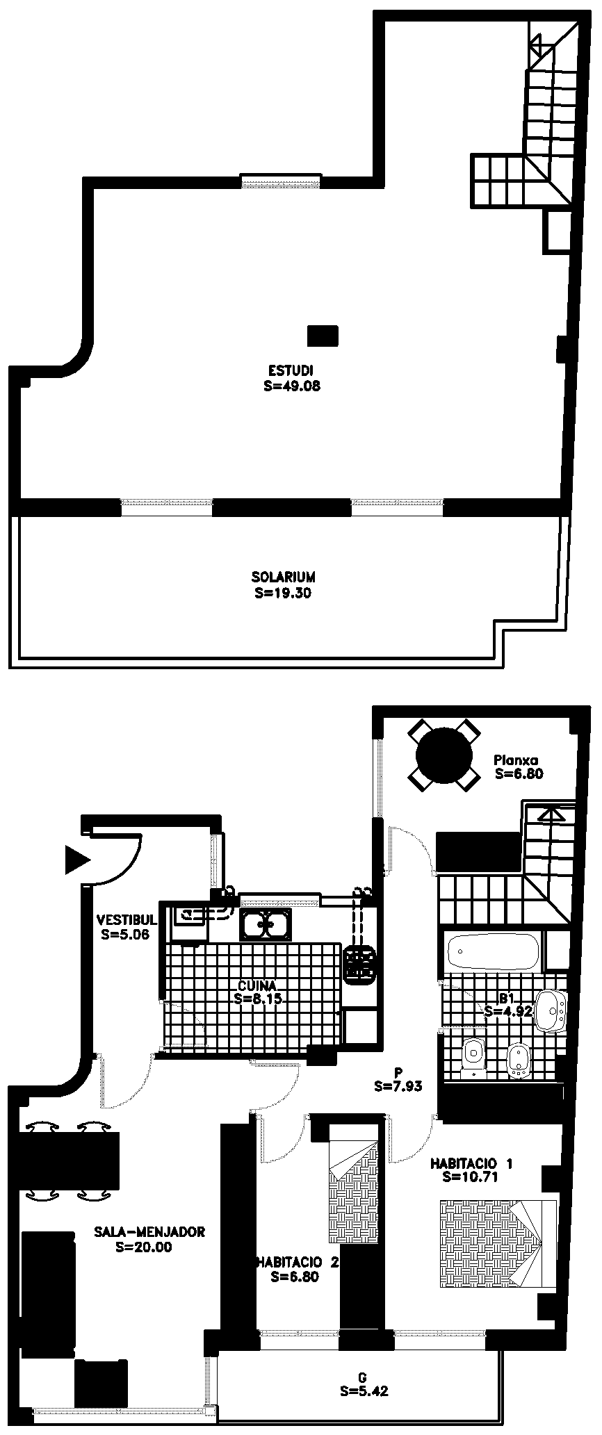
| 3º 3ª (VENUT) |
|
|
|
|
|
|
|
|
Vestíbul |
5,08 m2 |
|
Habitació planxa |
6,80 m2 |
| Passadís |
7,93 m2 |
|
Bany 1 |
4,92 m2 |
| Sala menjador |
20,00 m2 |
|
Galeria |
5,42 m2 |
| Cuina |
8,15 m2 |
|
Estudi |
49,08 m2 |
| Habitació 1 |
10,71 m2 |
|
Solarium |
19,30 m2 |
| Habitació 2 |
6,80 m2 |
|
|
| VER MEMÒRIA DE QUALITATS |
A LA VENDA Tel. 670 290 001 - 608
794 520

PROMOCIÓ A MONTURIOL 53-55 (RIPOLLET)
A LA VENDA Tel. 670 290 001 - 608
794 520
|